Glass Ordering Software that takes the guesswork out of every job
Ordering in Smart Glazier Business makes it simple to track glass, hardware, and consumables for every project.
Compare supplier costs, generate quick and accurate purchase orders, and integrate with glass fabrication software.
No more lost emails or unclear instructions - everything flows from quoting to fabrication with full visibility.
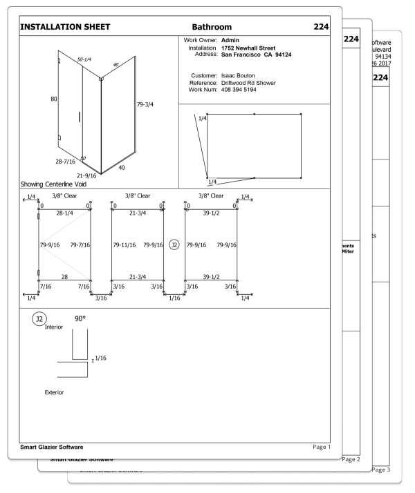
- Generate clean order sheets, cut lists, and installation reports: Easy-to-read documents in PDF or DXF format ensure your team never misses a detail
- Send to fabrication instantly: Export drawings directly to cutting tables, CNCs, and other glass machinery
- Compare vendors instantly: See pricing side by side and choose the best option for every order
- Link to job statuses: Link to job statuses to follow deliveries, reworks, and installation progress all in one place
Smart Glazier Business order management feature means fewer mistakes, faster turnaround, and happier customers - with every order flowing smoothly from quoting to installation.
Why use Smart Glazier Business to send your glass orders?
Get end-to-end control of your ordering process: from reducing bad glass through accurate order sheets to automating purchase orders and providing DXF/PDF outputs.
Smart Glazier Business is built specifically for the glass industry, where a single error can mean wasted glass, missed deadlines, and frustrated customers.
By connecting quoting, ordering, and installation into one system, you get:


Clear Communication
Generate professional order sheets, hardware lists, and installation reports so installers always have the right details.

Smarter Fabrication
Export machine-ready DXF and PDF drawings straight to your cutting tables and CNCs, cutting down turnaround times and removing manual entry.

Total Visibility
Track supplier performance, compare vendors, and monitor order statuses so you know exactly what’s on time and what needs chasing.The result: fewer reworks, faster installs, and happier customers - all while protecting your margins.
Discover more about how you can benefit from ordering through Smart Glazier Business below:


Generate Accurate Order Sheets
Smart Glazier Business automatically generates cutting lists and order sheets in clean, readable PDF format, with DXF exports available for direct use in production.
- Generate accurate order sheets that can be exported to PDF or DXF for suppliers and production teams
- Easy-to-read layouts remove the risk of supplier mistakes
- Attach drawings, dimensions, and hardware lists so nothing is missed
- Reduce reworks and wasted glass by making sure suppliers have every detail upfront
Bad orders mean lost money and wasted time. Accurate order sheets keep suppliers aligned and your jobs profitable.
Hardware Lists and Installation Reports
Give your team and suppliers everything they need in one place.
- Auto-generate hardware picking lists directly from your quotes
- Produce installation reports so site crews know exactly what’s required
- Ensure glass, hardware, and consumables are always ordered together
Keeping hardware and glass aligned prevents site delays and avoids costly last-minute runs for missing parts.




Field Access
Give your installers access to picking lists and installation reports on their devices.
- Field staff can view picking lists and installation reports directly on their phones
- Ensure crews always have the right glass and hardware before leaving the shop
- Keep ordering rights in the office to maintain control and prevent costly mistakes.
Field access makes sure installers are always prepared, while the office retains full authority over ordering.
Export Directly to Fabrication
Send glass drawings to your machines in seconds.
- Export your orders directly to machinery or provide DXF/PDF files to suppliers, ensuring every detail is accurate and consistent
- Compatible with leading software like A+W, Lisec, Optima, Glasstrax, FeneVision, and Jotika
- Eliminate manual re-entry that wastes hours and causes mistakes
- Speed up turnaround times by linking quoting → ordering → cutting in one workflow
Integrated exports keep your fabrication line running smoothly and reduce costly errors.


"Smart Glazier Business has most certainly helped with our efficiency... years ago, our office staff would hand draw PO's and send them by fax!
Utilising Smart Glazier's designer and email integration makes the process of ordering glass much quicker and easier."
ClearGlass Glass & Glazing Specialists


Compare Supplier Pricing
Choose the right glass supplier every time.
- Compare vendor pricing side by side
- Make informed purchasing decisions that ensure the best margin for your job
- Track supplier performance over time to see who delivers consistently
Vendor comparison helps protect your margins and ensures your projects stay profitable.
Track Supplier Orders with Statuses
Stay on top of every purchase order so nothing goes missing.
- Linked to purchase orders: See at a glance which orders have been sent, received, or are still outstanding
- Overdue alerts: Spot late deliveries quickly and chase the right supplier before projects are delayed
- Shipment tracking: Record when goods are due to arrive and keep everyone in the loop
- Direct link to jobs: Once everything is received, the related work order is marked ready for installation or invoicing
Tracking supplier orders in one system makes it easy to manage incoming glass, reduce bottlenecks, and keep projects moving without last-minute surprises.




Manage Reworks with Ease
Turn reworks into opportunities to improve.
- Quick reordering: Easily request replacement glass from suppliers with the right plans attached
- Accurate fault logging: Record whether issues came from the supplier or your own team
- User accountability: Internal faults can be assigned to individual users for training and improvement
- Detailed reporting: Track rework reasons over time to spot patterns and reduce future errors.
Every glazing business faces reworks, but Smart Glazier Business makes them easier to manage, transparent to report on, and valuable as a tool to improve quality and efficiency.
Want to dive deeper?
Book a Free Demo of the
Best Order Management Software for Glaziers
Next Benefit
It's time to get started with
Smart Glazier Business


